Appartamento Via Cavour n. 45, Rocca di Papa (RM)

In vendita
Appartamento
Rocca di Papa
49.992 €
Descrizione
POSSIBILITA' DI ASSISTENZA PER TUTTI GLI IMMOBILI IN ASTA, ANCHE QUELLI NON PUBBLICATI DAL NOSTRO STUDIO.
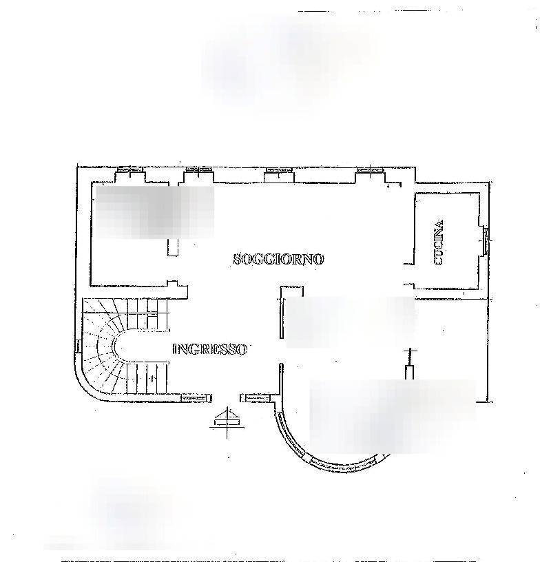
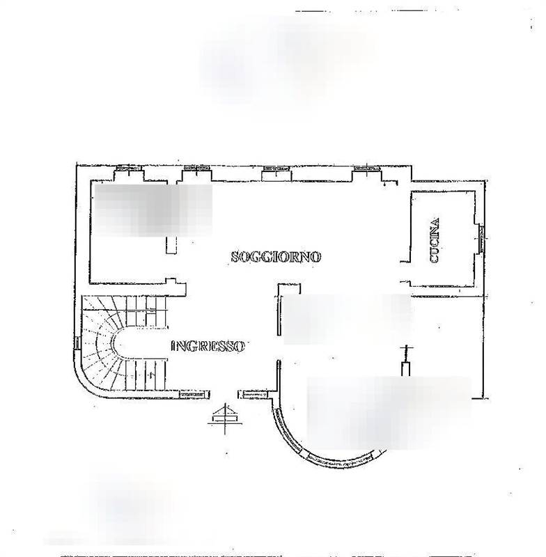
Rocca di Papa (RM) Via Cavour n. 45. Appartamento al piano terra.
OFFERTA MINIMA: 49.992,19 €
DATA DELL'ASTA: 04/12/2025 11:00
Casa è dove si trova il cuore. (“Plinio il vecchio”)
Con lo STUDIO GIULIANI REAL ESTATE il sogno diventa realtà!
Il nostro team di professionisti offre assistenza, consulenza legale e stragiudiziale per tutti gli immobili in asta giudiziaria e libero mercato. I servizi offerti al nostro cliente sono molteplici:
- Ricerca dell'immobile con valutazione immobiliare
- Valutazione preliminare tecnica e studio della perizia con geometra in sede;
- Valutazione economica con broker finanziario in sede con possibilità di mutuo fino al 100% del prezzo di aggiudicazione;
- Prenotazione visita degli immobili oggetto di interesse tramite il custode giudiziario;
- Partecipazione in asta, il cliente verrà seguito fino alla consegna delle chiavi;
- Effettuiamo inoltre pratiche di saldo e stralcio e di acquisto del credito dai maggiori istituti bancari.
- La nostra parcella è dovuta solo in caso di aggiudicazione.
- Il nostro team è a vostra completa disposizione per fornirvi tutte le informazioni e per fissare un appuntamento per una consulenza gratuita.
I dati inerenti l'immobile ed il materiale fotografico contenuti nel presente annuncio verranno confermati in sede di consulenza.
Puoi consultare tutti gli immobili disponibili in aggiornamento quotidiano sul nostro sito.
Caratteristiche principali
Codice:
4235768 RG 54/2016
Città:
Rocca di Papa
Categoria:
Appartamento
Locali:
5,5
Mq:
140
Piano:
Terra
Classe energetica:
A+
Stato Immobile:
Buono
Mappa
Via Cavour, 45 - Rocca di Papa (RM)
Planimetrie
Cookie preference